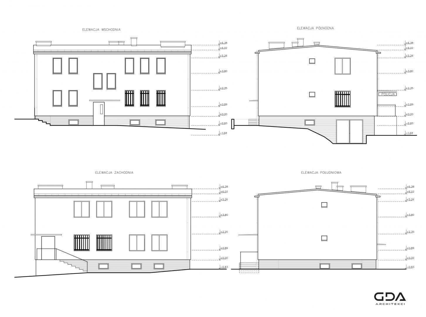
Komisariat w Somoninie