Typ zabudowy: Jednorodzinna
Lokalizacja: Kosakowo
Rok: 2021
Zespół: GDA
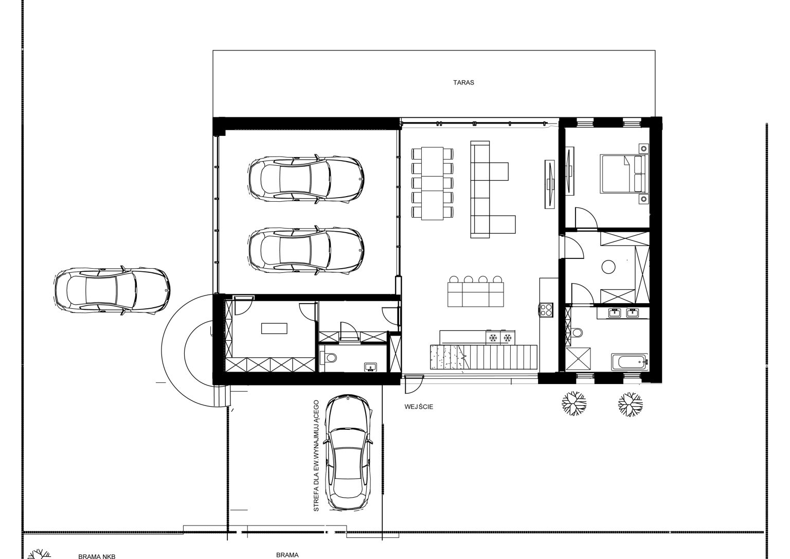
Dom o prostej i wyrazistej bryle, którego koncepcja powstała w kilku wariantach kolorsytycznych. Jest to druga wersja domu dla miłośników motoryzacji, w którym ideą przewodnią funkcji był widok z salonu na przeszklony garaż a kolorystyka i materiały wynikają wprost z kontekstu otoczenia.






