Typ zabudowy: Hotelowe i Usługowe
Lokalizacja: Gdynia
Powierzchnia użytkowa: 380 m2
Rok: 2017
Zespół: GDA
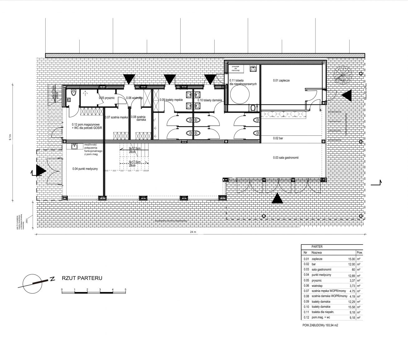
Koncepcja budynku wielofunkcyjnego na Gdyńskim Bulwarze. Architektura projektowanego obiektu wpisuje się w morski charakter miasta Gdyni – prosta, modernistyczna elewacja w jasnej kolorystyce ( biel, jasne drewno, elementy szarego kamienia) z dużą ilością przeszkleń. W projektowanym obiekcie dużą wagę przywiązuje się do potrzeb związanych z funkcjonowaniem jednostki ratowniczej – na piętrze wyznaczono pomieszczenie do obserwacji plaży, a na parterze bezpośrednio od strony bulwaru i plaży punkt medyczny (ratownicy mają ok. 300-400 interwencji w sezonie – skaleczenia, złamania itp.) Zgodnie z wytycznymi zaprojektowano węzeł szatniowy dla kobiet i mężczyzn wraz z prysznicami, który w sezonie letnim służy ratownikom, a w sezonie zimowym – morsom. Funkcją uzupełniającą jest gastronomia –kawiarnia z barem- w parterze projektuje się ladę barową wraz z niewielkim zapleczem magazynowym (współdzielonym z ratownikami / obsługą wyciągu nart wodnych) i zapleczem socjalnym oraz toaletą dostępna dla gości lokalu. Na piętrze projektuje się nieduży taras widokowy oraz salę gastronomiczną. Takie zestawienie funkcji zapewni całoroczne funkcjonowanie obiektu.


