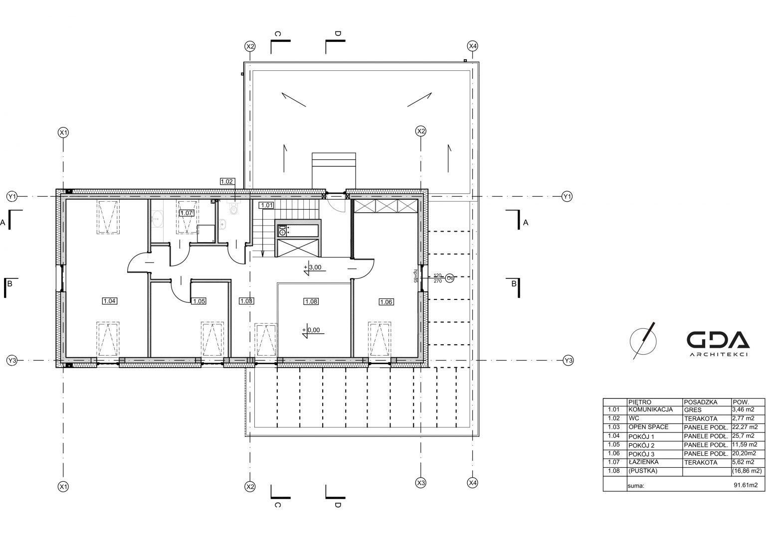
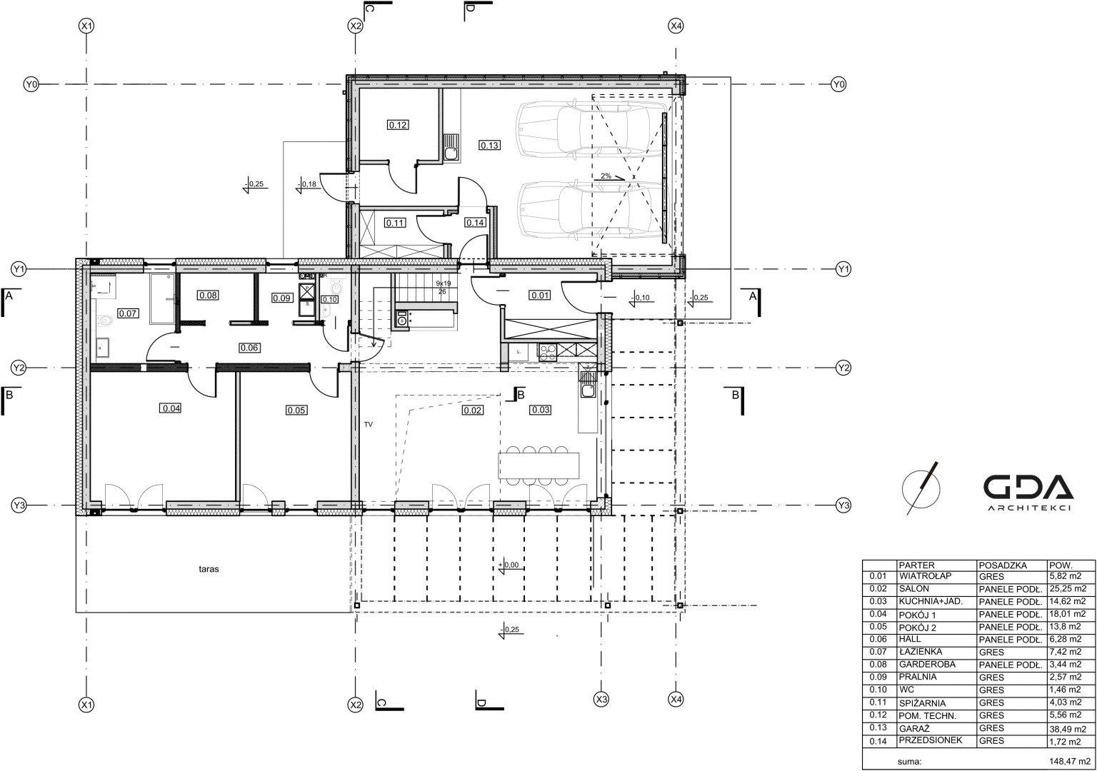
Typ zabudowy: Jednorodzinna
Lokalizacja: Góraszka
Powierzchnia użytkowa: 250 m2
Rok: 2012
Zespół: GDA
Projekt domu energooszczędnego zlokalizowanego w podwarszawskiej Góraszce. Budynek posiada szereg rozwiązań energooszczędnych oraz ekologicznych. Elementem wyróżniającym prostą bryle z dużą ilością przeszkleń od południa jest charakterystyczna drewniana rama okalająca budynek.


