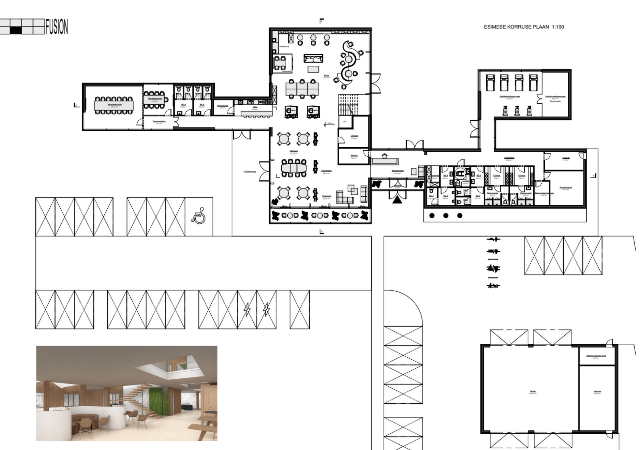
„FUSION” Konkurs architektoniczny na budynek biurowy RMK Ussimäe -opis plany sytuacyjnego i rozwiązań architektonicznych, Zależało nam na stworzeniu architektury trafnie wpisującej się w kontekst i funkcję miejsca. Analizując historyczny oraz aktualny układ urbanistyczny doszliśmy do wniosku, że najlepiej będzie rozdrobnić projektowaną zabudowę i nadać jej ruralistycznego,lokalnego charakteru. Nowoczesna siedziba RMK, zaprojektowana z myślą o funkcjonalności i estetyce, prezentuje się jako harmonijne połączenie czterech brył głównych, spiętych ze sobą transparentnymi łącznikami wykonanymi z wysokiej jakości szkła. Budynek przyciąga uwagę zróżnicowaną wysokością, gdzie dwukondygnacyjna część przeplata się z parterowymi elementami, nadając całości dynamiczny i nowoczesny charakter. Taka koncepcja ukształtowania zabudowy umożliwia zarówno zachowanie istniejącej wartości krajobrazu jak i wprowadza nową wartość architektoniczną o gabarytach dostosowanych do zastanego otoczenia oraz projektowanej funkcji. Budynek składa się z 4 brył głównych połączonych ze sobą wizualnie i funkcjonalnie szklanymi łącznikami. Taki zabieg pozwolił na klarowne i czyste wydzielenie stref funkcjonalnych zarówno wewnątrz jak i na zewnątrz budynku. Projektowany obiekt usytuowany jest w centralnej części działki w niedużej odległości od budynku istniejącego, przeznaczonego do późniejszej rozbiórki. Budynek garażu zlokalizowano w południowej części działki w okolicy wjazdu głównego. Zachowanie istniejących roślin pozwoliło stworzyć zespół kameralnych przestrzeni w formie dziedzińców zachęcających zarówno do pracy na świeżym powietrzu jak i chwili odpoczynku. Dzięki zastosowaniu szklanych łączników pomiędzy bryłami głównymi użytkownicy budynku są w stałym kontakcie z naturą i naturalnym oświetleniem. Układ i rozmieszczenie funkcji w budynku wynika z analiz, które przedstawiono na schematach ideowych. Projektując obiekt braliśmy pod uwagę uwarunkowania działki takie jak nasłonecznienie, sąsiedztwo, istniejące rośliny do zachowania oraz układ komunikacyjny. Na wprost wjazdu zlokalizowaliśmy wejście główne – z dużym logo odciśniętym na ścianie oraz z 3 masztami z flagami. Wnętrze budynku zostało starannie podzielone na kilka stref, z myślą o efektywnej organizacji pracy i komforcie użytkowników. Część biurowa obejmuje zarówno otwarte przestrzenie (open space), sprzyjające współpracy i dynamicznej wymianie pomysłów, jak i biura do pracy cichej, zapewniające prywatność i skupienie. Dodatkowo, znajduje się tu przestronna część wspólna, dedykowana relaksowi i integracji pracowników. Zastosowane duże przeszklenia ściśle korespondują z funkcją pomieszczeń, wprowadzając naturalne światło do wnętrza i łącząc użytkowników z otaczającym krajobrazem. Na parterze zlokalizowano część higieniczno-sanitarną z zapleczem technicznym, co sprzyja ergonomicznemu funkcjonowaniu budynku. Dodatkowo, w myśl dbałości o zdrowie pracowników, dostępna jest siłownia/fitness, zachęcająca do aktywności fizycznej. Na uwagę zasługuje również wewnętrzne atrium rozcinające korytarz I piętra budynku głównego, które w połączeniu ze świetlikami kalenicowymi zapewnia nie tylko naturalne doświetlenie pomieszczeń, ale kreuje również przyjazną przestrzeń. Proporcje budynków, dobór rozwiązań elewacyjnych oraz zaprojektowanie przeszkleń dostosowane są do aktywności wewnątrz i na zewnątrz budynku . Czytelny układ funkcjonalny pozwala na strefowanie funkcji a zarazem na możliwość interakcji pomiędzy różnymi grupami użytkowników. Otoczenie budynku również zostało starannie zagospodarowane. Dziedzińce i tarasy zapewniają pracownikom miejsce do odpoczynku, relaksu oraz pracy na świeżym powietrzu, tworząc atmosferę sprzyjającą kreatywności i efektywnej pracy. Całość stanowi harmonijną i funkcjonalną przestrzeń, zorientowaną na potrzeby użytkowników, jednocześnie integrującą się z otoczeniem. – opis rozwiązań konstrukcyjnych, materiałów budowlanych i wykończeniowych oraz opis efektywności energetycznej Ograniczenie ilości materiałów (drewno, lastriko oraz zieleń) oraz ich konsekwentne i spójne zastosowanie pozwoliło uzyskać klimat budynku o tradycyjnym charakterze,ale w nowoczesnej odsłonie Projektując kładliśmy silny nacisk na rozwiązania proekologiczne. Konstrukcja budynku wykonana jest z drewna ( konstrukcja szkieletowa z elementami drewna klejonego). Termoizolacja zakłada użycie wełny mineralnej o grubości min. 45cm ( ściany ) oraz 50 cm ( dach). Elewacje wentylowane oraz dach wykończone są drewnem naturalnym na podkonstrukcji drewnianej. Elewacja, utrzymana w współczesnym stylu, wyróżnia się naturalnym drewnem, które dominuje zarówno na elewacjach, jak i na dachu, nadając budynkowi ciepły i przyjazny wygląd. Okładzina z drewna, którą pozyskujemy w zrównoważony sposób, jest prawdopodobnie jedną z niewielu opcji dachowych przyjaznych dla środowiska. Okładzina drewniana pozycjonowana jest jako ekologiczna alternatywa dla spopularyzowanych w ostatnich latach dachów cynkowych. Naturalne drewno to surowiec odnawialny, nadający się do recyklingu. Proces produkcji takiego pokrycia dachowego jest energooszczędny. Dobrze zabezpieczone sprawuje się dobrze przez cały okres użytkowania, a po zakończeniu cyklu życia produktu można go zutylizować lub poddać recyklingowi w sposób przyjazny la środowiska. Drewno magazynuje węgiel, który odgrywa ważną rolę w ograniczaniu emisji dwutlenku węgla. Okładziny drewniane to uniwersalny, ponadczasowy materiał budowlany, który dobrze sprawdza się w tradycyjnej i współczesnej architekturze. Okładziny z naturalnego drewna oferują szereg estetycznych, przyjaznych dla środowiska opcji wykończenia. W większości przypadków dach pokryty drewnem nie musi być wymieniany w całości. W przypadku stwierdzenia uszkodzeń na dachu z desek drewnianych należy wymienić tylko uszkodzone deski. Oprócz ciepła i piękna na zewnątrz okładzina z drewna jest stabilna wymiarowo. Dobrze zabezpieczona doskonale radzi sobie w trudnych warunkach atmosferycznych. Drewniane pokrycie dachu ulega wietrzeniu, co wiąże się z delikatną zmianą koloru od oryginalnego z dnia montażu do delikatnych szarości i jasnobrązowych tonów. Zmiana koloru jest estetycznym naturalnym procesem, którym należy się delektować i celebrować. Obiekt wyposażony będzie w wentylację mechaniczną z rekuperacją i klimatyzacją, pompę ciepła powietrze-woda wspomaganą panelami fotowoltaicznymi, ogrzewanie podłogowe oraz okna 3 szybowe. Dodatkowo okna zlokalizowane od południowej strony budynku wyposażone będą w rozwiązania zapobiegające przegrzewaniu ( żaluzje zewnętrzne chowane w elewacji wraz z automatyką sterującą). – podstawowe wskaźniki techniczne i program pomieszczeń w formie tabeli ( pow. zabudowy, netto, brutto i kubatura)






