Typ zabudowy: Przemysłowa
Lokalizacja: Zastrzeżone
Powierzchnia użytkowa: 500 m2
Rok: 2017
Zespół: GDA
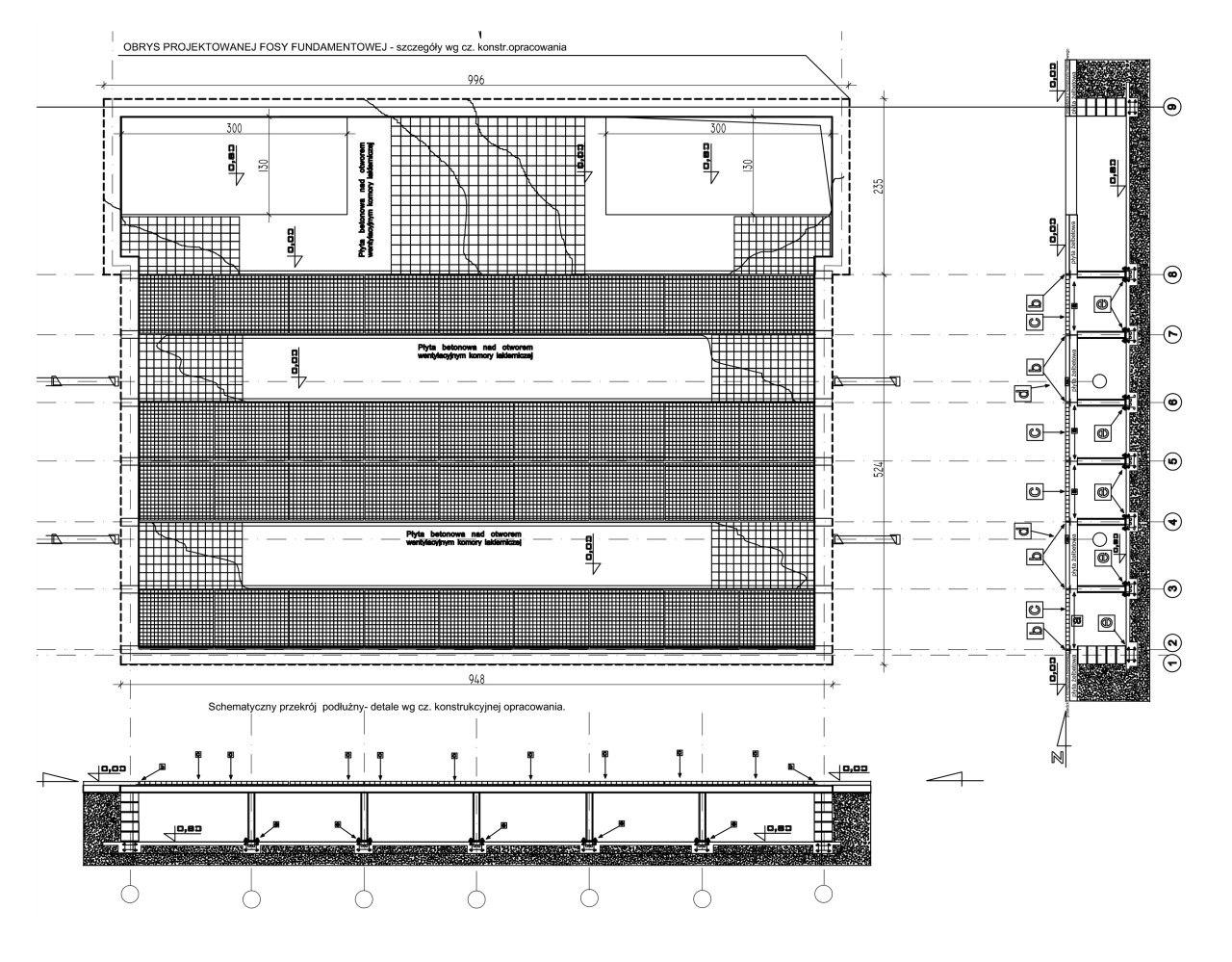
Poniżej fragment wielobranżowego opracowania projektowego dotyczącego nowoczesnej lakierni o pow. ok 500m2 w istniejącej hali o pow 20.000m2. Przebudowa hali produkcyjnej ( wykonanie fosy fundamentowej pod urządzenia technologiczne oraz instalacji wentylacji mechanicznej) wraz ze zmianą sposobu użytkowania części magazynowej hali na myjnię procesową,oczyszczalnię ścieków przemysłowych oraz lakiernię ciekłą. Na zlecenie firmy PROJEKTER

