Typ zabudowy: Jednorodzinna
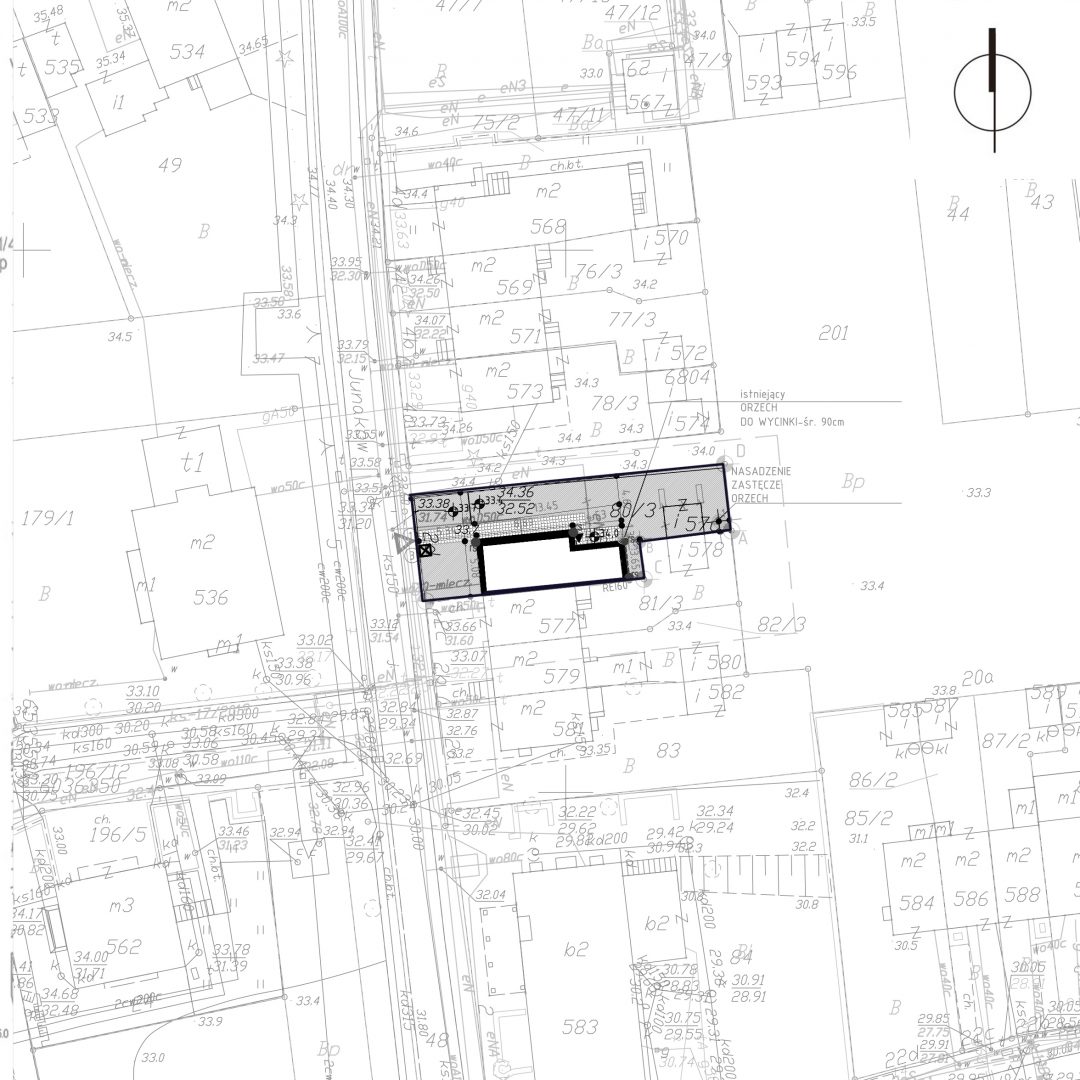
Lokalizacja: Sopot
Powierzchnia użytkowa: 72 m2
Rok: 2017
Zespół: GDA
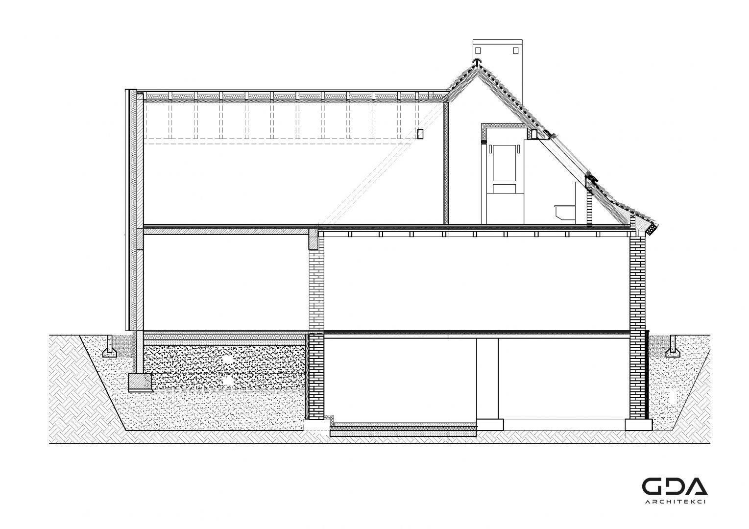
Remont kompleksowy obejmujący częściową termomodernizację wraz z przebudową i rozbudową budynku mieszkalnego jednorodzinnego wraz z zagospodarowaniem działki. Nieruchomość zalicza się do zabudowy historycznej – budynek szeregowy z okresu międzywojennego. Projektowana rozbudowa o nową formę opiera się na prostej idei polegającej na kontrastowym zestawieniu istniejącej formy budynku z nową formą, która nie udaje, że była tam od zawsze. Propozycje materiałowe projektowanej elewacji zakładały jej wykonanie z płyt włókno-cementowych (wizualizacje), żeby finalnie po szeregu uzgodnień z Inwestorem i MKZ pokryć całą dobudowaną część dachówką ceramiczną Actua 10. Kolorystycznie kolor ceramiki nawiązuje do otoczenia – wszechobecna dachówka karpiówka, kolory ciepłe, ceglane, a swoją prostotą podkreślą charakter projektowanej bryły. Rysunek dachówki sprawił, że ślepa ściana będzie stanowiła jedną spójną całość wraz zresztą projektowanego budynku. Forma prostego dachu bez okapu została wybrana celowo w celu podkreślenia prostoty projektowanej formy. Już wkrótce zdjęcia z budowy!







